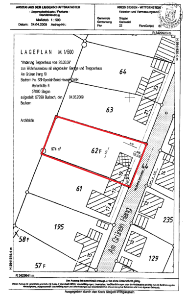
SIEGEN – AM GRÜNEN HANG 19
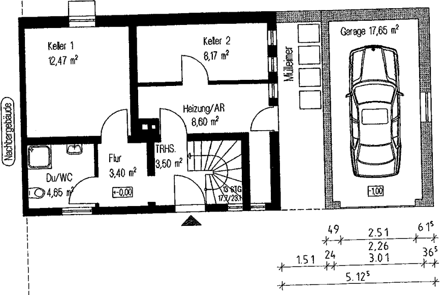
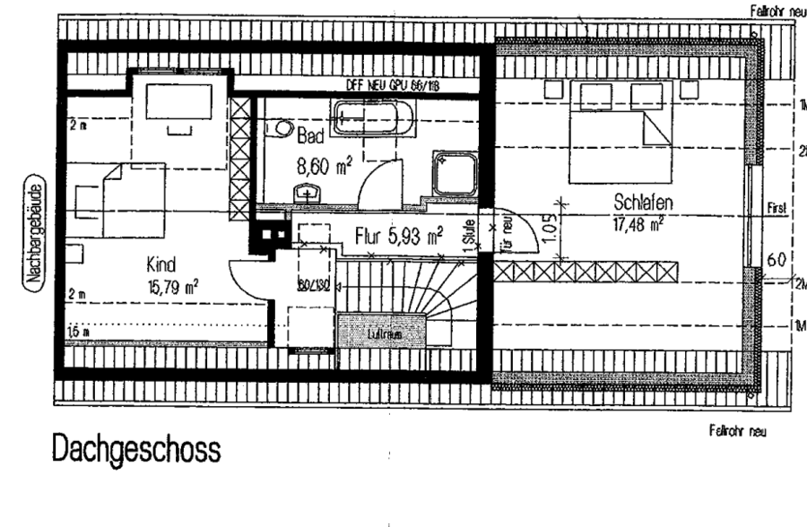
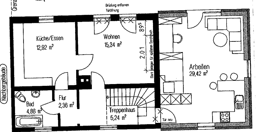
Das Einfamilienhaus wurde 2009 nach KfW Richtlinien vollständig saniert und gleichzeitig um einen Anbau erweitert. Bäder Küche und Flure sind mit hochwertigen Fliesen und alle weiteren Wohnräume mit Laminat ausgestattet. Das Einfamilienhaus erstreckt sich über 3 Etagen mit 4 Zimmer, 3 Bäder sowie einer hochwertigen Einbauküche.Die Straße "Am Grünen Hang" liegt ruhig, aber dennoch zentral in Siegen-Geisweid. Alle Geschäfte des täglichen Bedarfs sind zu Fuß in wenigen Minuten erreichbar. Die Fahrzeit zur HTS beträgt ca. 3 Minuten und zur A45 ca. 10 Minuten.
Steckbrief:
• Einfamilienhaus über 3 Etagen, ca. 131 m²
• 4 Zimmer, 3 Bäder, hochwertige Einbauküche
• Sanierung 2009 nach KFW-Richtlinien
• Garage







