SIEGEN – HAINSTRASSE 56
Das Objekt „Wohnen am Schloss“ in der Hainstraße ist direkt an der Schlossmauer der mittelalterlichen Höhenburg Oberes Schloss auf dem Siegberg gelegen und nur einen Steinwurf von dem schön angelegten Schlosspark entfernt. Die angrenzende Altstadt erinnert mit Kopfsteinpflaster, regionaltypischer Fachwerksarchitektur, Kirchen und zahlreichen historischen Gebäuden an längst vergangene Zeiten. Trotz der ruhigen Lage sind die Oberstadt und der Siegener Wochenmarkt in nur wenigen Minuten zu Fuß zu erreichen.
Steckbrief:
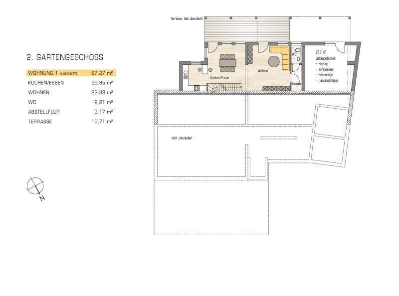
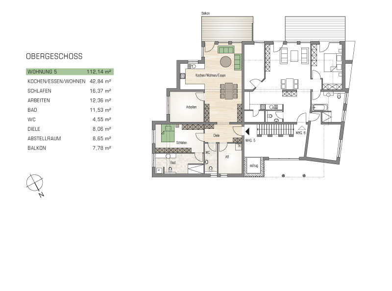
• sieben Wohneinheiten von 90 m² bis zu 185 m²
• alle Wohnungen haben Balkone bzw. eine Terrasse
• alle Wohnungen sind über einen Aufzug erschlossen
• sechs Garagen, zwei Carports

















