SIEGEN – RINGSTRASSE 11
Die Ringstraße liegt auf der westlich nach Weidenau ausgerichteten Hangseite. Ein besonderer Pluspunkt des Domizils in der Ringstraße ist die Diakonie-Station, die in direkter Nachbarschaft gelegen ist. Bei Bedarf kann eine unmittelbare Versorgung über die Diakonie-Station in Anspruch genommen werden. So wird das sorgenfreie und gut betreute Wohnen im Alter ohne weiteren Umzug möglich. Zu Fuß ist das Einkaufszentrum in Weidenau in nur 15 Minuten zu erreichen.
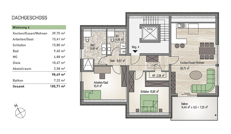
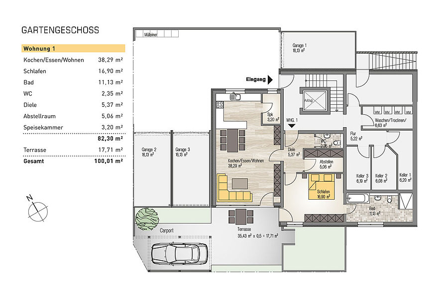
Steckbrief:
• vier barrierefreie Wohnungen von 82 m² bis zu 123 m²
• alle Wohnungen haben Balkone bzw. eine Terrasse
• alle Wohnungen sind über einen Aufzug erschlossen
• drei Garagen, ein Carport
Fertigstellung: Sommer 2014










